Direkt zum Seiteninhalt

Praxisplanung Gastroenterologie - Marcel Baechler - Innenarchitektur, Architektur & Praxisplanung


Praxis für Gastroenterologie | Bern
Auftraggeber: Dr. med. Beat Bigler, Bern
Realisierung: 2015
Auftragsart: Direktauftrag

Innenarchitektur: Marcel Baechler, Innenarchitekt vsi.asai.
Bauleitung: Marcel Baechler, Innenarchitekt vsi.asai.

Dr. med. Beat Bigler erteilte uns den Auftrag eine bestehende Praxis für Gastroenterologie neu zu gestalten. Er wollte eine fröhliche uns angenehme Praxis wo er sich jeden Tag daran erfreuen kann. Im Weiteren wünschte er sich viel Gold und Gelb in der Praxis.
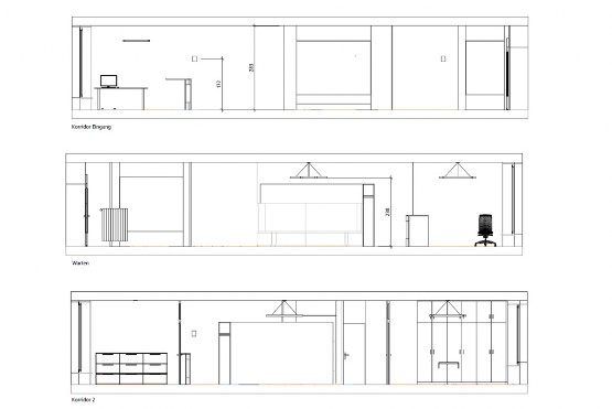
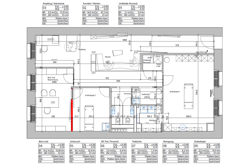
Wir nahmen dieses Goldgelb und setzen es als Kraft des Lichtes kombiniert mit den Naturelementen ein. Im anderen standen wir vor der Herausforderung den unendlichen langen Korridor auf irgendeine weise aufzulösen. Das gelang uns mit den schräggestellten Hochglanz weissen Wandelementen, die wir zusätzlich mit dem Naturelement bespielten. Im Zentrum gestalteten wir den Wartebereich, der durch die überhöhen Sitzlehnen zugleich als Raumtrenner dient. In den Toiletten spachtelten wir die bestehenden keramischen Platten und verwenden dort eine Spezialfarbe, die uns das Goldgelb wiedergeben.

Vor- | Nachher (Schieber nach Links und Rechts bewegen)
Line
Zurück zum Seiteninhalt